深圳南山科技园住宅新盘——翰熙典居,已于2025年6月6日拿证,折后均价约10万/㎡,单价8.5万㎡起9折折后价,105户型折后总价约894万起120户型折后总价约1038万起,140户型折后总价约1457万起,已于6月7日开始线下售楼处现场登记(冻资30万可率先锁定开盘当天购房9折优惠),预计6月22日正式开盘选房。
认筹当天开放所有户型样板房,过来现场参观需拨打开发商售楼部电话:400-880-7297(已认证)进行提前预约,本次我们开盘首推344套住宅,建面约105-135㎡3-4房!

如需了解本楼盘更多详情,欢迎来电咨询翰熙典居开发商售楼处免费400咨询/预约电话:400-880-7297(官方发布)中介请勿扰,因近期参观的人员太多,本项目营销中心暂不接受临时到访,为不耽误您的行程,过来楼盘现场参观样板房请务必记得提前来电预约,预约看房的话最终房价还能更加优惠,包您满意!
营销中心现场


翰熙典居 取证
项目总规划平面图如下:
翰熙典居规划平面图
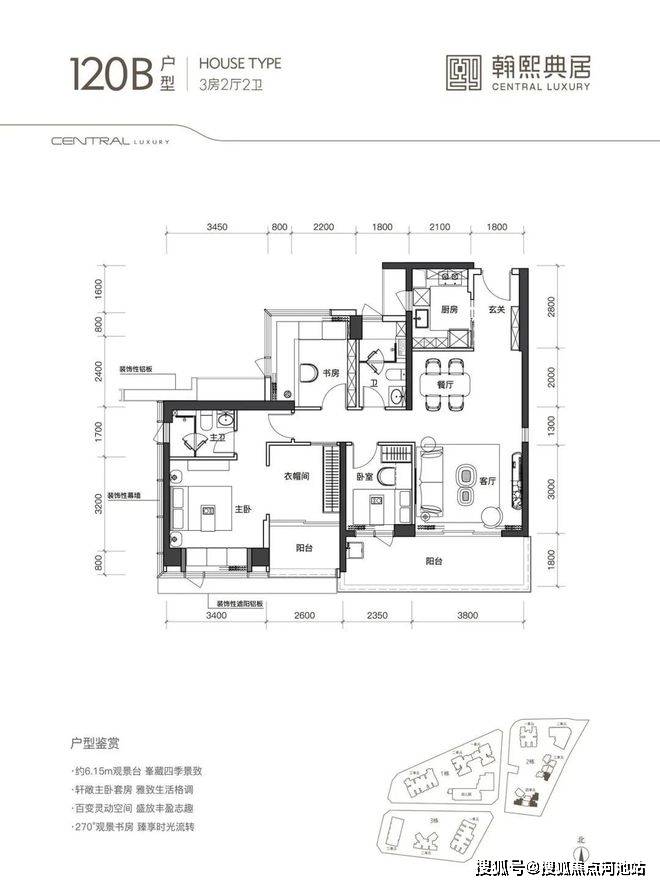
翰熙典居户型图欣赏:






01.产品分析
翰熙典居,位于深圳南山粤海街道腾讯总部旁,前身为“桂庙新村旧改项目”。
项目总建面约37万㎡,建成后将成为集住宅、商业、办公及酒店为一体的大型综合项目,能为片区供应含保障房在内近25万㎡住宅。

2023年2月,桂庙新村旧改正式开拆。同年5月发布实施主体确认公示,内容显示其补偿方式为产权置换和货币补偿相结合,已完成100%签约;项目实施主体拟确认为深圳市贯凯投资有限公司,隶属于深圳市阳光华艺房地产有限公司。

阳光华艺房地产公司已深耕深圳23年,主营房地产开发,旗下有建筑施工企业、物业管理公司、酒店经营管理公司等,运营有自有品牌酒店,已经成功开发了阳光华艺大厦、南山城市花园、流塘阳光花园、阳光海滨花园等多个旧改楼盘,在行业内颇有名气。
2023年9月,项目终于开始动工,工程造价7200万元。按照目前的工程进度来看,项目已出地面15层左右,相信很快就能和大家见面。

翰熙典居总占地70224㎡(相当于10个标准足球场大小),定位是打造集居住、商业、办公、酒店及公共配套设施为一体的综合社区。
项目开发建设用地41660㎡,容积率8.9,计容建筑面积369100㎡,包含住宅249950㎡(含人才住房和保障性住房32500㎡),商业、办公及旅馆业建筑106530㎡(含商业文化设施不低于5330㎡)。
另外,项目还有规划近12620㎡的公共配套设施、3200㎡ 的12班幼儿园、占地面2900㎡公交首末站等,并配建占地面积1500㎡的社区体育活动场地。

项目总投资83.56亿元,共分三期开发,除去保障性住房和回迁房,总共可售714套商品房。

本期先推出的是01 地块,靠近深大校区。01地块规划总建面约17万㎡(住宅建面约8.9万㎡,商业建面约3.2万),容积率达9.0。由2栋(1栋1、2单元)53层、1栋(1栋3单元)43层的超高层塔楼和1栋幼儿园组成。

项目总规划1038套,其中保障房612套、回迁179套、可售商品房247套。规划停车位834个,车位比为1:0.83,车位略紧张。
据最新消息,本期推售面积为105-135-165的3-4房,将按照新规进行户型设计,预计使用率可达90%,项目展厅及销售团队已在组建,预计春节后开放展厅及样板间。

(目前户型图暂未出炉,具体可进入项目官方群,第一时间掌握项目最新消息。)
另外,02地块,在白石路一侧,规划总建面约16万㎡,容积率9.32。规划住宅建面约8.37万㎡、商业建面约1万㎡,办公面积约1.7㎡。
项目由4栋超高层塔楼组成,其中2栋2单元为26层的办公楼,2栋1、3、4单元分别为54、51、53层的住宅楼。住宅套数共872套(回迁544套+可售328套),提供停车位747个。
03地块,在白石路一侧,规划总建面约17万㎡,容积率11.19。规划住宅建面约7.65万㎡,商业建面约1.5万㎡,办公面积约0.6万㎡,酒店约1.9万㎡。
项目规划1120套(回迁981套+可售139套),停车数1019个,由3栋超高层塔楼组成,其中3栋1、2单元分布为52、53层的住宅产品,3栋3单元为35层的办公+酒店产品。
值得注意的是,在项目的西侧会配建一所小学,目前尚未开始动工。未来引进的学校或许是深大附属的小学。

02.地段配套分析
翰熙典居项目坐落于“深圳最牛街道”——粤海街道,一侧是深圳大学,另一侧是大厂云集的南山科技园,地理位置十分优越。
要知道,粤海街道被誉为“中国的硅谷”,走出了华为、腾讯、大疆等一大批著名企业,传说曾凭一己之力抗住了贸易战,于2020年开始火出圈。

年轻的90后——粤海街道,到底有多厉害?
粤海街道办成立于1991年,至今才“32岁”。面积约20.99平方千米,占深圳不到0.6%的面积,开车绕一圈10多分钟即可逛完。
但这样的“小身板”却创造约超过4000亿的GDP,这个规模甚至超过了一些省份的GDP总量,综合排名连续多年位居全国前三。人均GDP约为6.32万美元,排名世界第十二,是北上广深四个一线城市的10倍。

粤海街道的心脏,是深圳科技园,也称为深圳高新区(南山园区)。每个城市都有一个科创担当,例如北京的中关村,上海的张江高科技园,而在深圳,它是南山科技园。
片区内坐拥130+家上市公司,总市值超过5万亿。这里各种科技公司俯拾皆是,不仅有腾讯、百度、大疆、迈瑞、大族激光、金蝶软件等国内著名科技公司,很多国外科技公司如苹果、微软、高通也将其办事处或者研发中心设置于此。

值得一提的是,粤海街道还拥有深圳大学等高等学府,为区域提供了丰富的人才资源和科研支持。同时,街道内还设有多个创新平台、孵化器和加速器,为初创企业和创新项目提供了良好的成长环境。

这样的一个“寸土寸金”的顶级产业片区,注定宅地供应稀缺,基本靠旧改实现供应。
在过去的10年期间,片区内仅有由大冲村旧改而来的华润城二期入市(开盘便售罄),均价高达13万/㎡,已时隔2年。
目前片区有最新动工进展的是桂庙新村城市更新项目翰熙典居,可售商品房套数仅714套,势必成为2025年南山区网红盘。
下面我们看看项目周边配套如何。
项目所在的桂庙新村虽是城中村,但地段和各方面配套都非常不错!
在交通配套方面,项目距离9号线/15号线(在建中)交汇处——深大南站不到300米,地铁出行十分便利。

其中,地铁15号线是深圳首条环线轨道,起终点均为前海站,极速串联起前海、宝中、大铲湾、“腾讯科技岛(在建中)”、南山科技园、后海总部基地、留仙洞总部基地等高端产业密集区,是深圳最具有价值的一个圈。
此外,自驾出行也很方便。项目临近南海大道、滨海大道,去往深超总部基地、前海自贸区、宝中等西部核心区域仅要20分钟内。

在商业配套方面,项目自带约5000㎡的商业规划。2公里范围内有海岸城、茂业百货、海雅百货等大型商超,日常购物娱乐皆能满足。

在教育配套方面,根据2024年南山学区划分,项目对口学校是南山区第二外国语学校(集团)学府一小和南山区第二外国语学校(集团)学府中学。根据坊间学校排名,两所学校均属于第二梯队。(具体入学以当年教育局公布为准)

学府中学成立于 2003 年,是南二外教育集团目前孵化的成员学校当中,综合实力仅次于南二外海德初中部的存在。学校现有 50 个教学班,2400 余名学生和 201 名教职员工,师资力量雄厚。

学府一小地处南山商业文化中心区,2001年建校,近年来刚刚扩建完成,扩建后学校环境、设施都进行升级,配备了未来教室、创客实验室等多种功能教室,生源主要覆盖深大周边,是学府中学的主要生源地小学。
在文体休闲方面,3公里范围内汇聚文心公园、南山书城,荷兰花卉小镇、南头古城、荔香公园、深圳人才公园等,各种休闲娱乐设施一应俱全。

在医疗配套方面,项目距离深圳大学医院约828米,距离三甲医院——南山区人民医院约1.2km,基本可满足居民日常看病就医需求。

看完以上介绍,如需了解更多关于我们深圳南山科技园翰熙典居楼盘最新消息、剩余房源、折扣优惠活动、近期房价走势等情况,欢迎咨询翰熙典居开发商售楼处咨询/预约电话:400-880-7297(已认证)中介勿扰。
温馨提示:因本项目营销中心参观样板间采取预约制,为不耽误您的行程,过来营销中心现场看房前请务必记得提前来电预约,预约看房的话享受的优惠折扣比直接上门更多,最终成交价格也会更加划算,在此真诚感谢您对我们工作的支持和信赖,恭候您大驾光临。
免责声明:以上展示的关于深圳翰熙典居楼盘最新图文资料可能部分来自网络,具体细节以最终签署的购房合同为准,如无意存在侵犯某方权益请及时联系我们处理。