北京进深 徐迪 拿地2个月后,北京城建房山北广阳项目总平图公示。
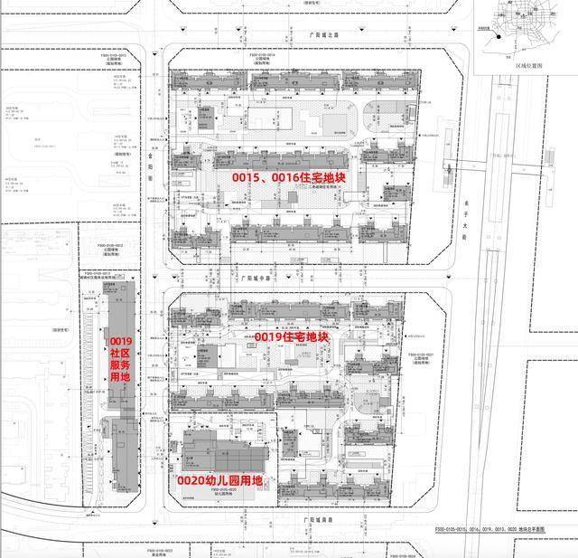
项目分为五个地块实施,总用地面积约5.56公顷,规划总建筑面积约14.98万平方米。
其中,北侧0015、0016居住用地面积约2.39公顷,规划总建筑面积约6.8万平方米;
南侧0019二类居住用地面积约1.94公顷,规划总建筑面积约6.84万平方米。
住宅地块西南角为0020地块,规划1所12班幼儿园,用地面积约0.51公顷,规划总建筑面积约0.41万平方米。
西侧0013城镇社区服务设施用地面积约0.71公顷,规划总建筑面积约0.91万平方米。

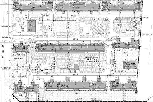
北区(0015、0016地块)规划9栋住宅楼,三行排列。
· 北排3栋均为9层洋房,楼栋东西间距仅2.83米。
其中1#、3#楼面宽53.5米,进深11.75米,分三个单元;
中间的2#楼面宽62.3米,进深12.55米,同样是三个单元。
· 中间排3栋:4#楼东单元10层,面宽17.3米,进深11.75米;西单元8层,面宽19.8米。
中央楼王栋5#楼为8层洋房,首层架空,设置为邻里共享空间。四个单元总面宽95.6米,进深12.4米。
西侧的6#楼为9层洋房,总面宽20.9米,一个单元两户,最大进深12.2米。
· 南排3栋,东南角7#楼共11层,两个单元,总面宽34.2米,进深11.75米。
8#楼最大进深12.55米,做了阶梯式的错层设计,其中:东侧单元7层,面宽20.3米;中间两个单元8层,总面宽43.5米;西单元10层,面宽22米。
西南角9#楼东边单元8层,西单元10层,总面宽34.5米,进深11.75米。

小区东西两侧均有一处人行出入口。
其中西侧为景观大门,向内通过风雨连廊由西向东依次连接了:
物业服务用房/邻里共享空间→中央绿化广场→室外活动场地;同时向南连接架空层。
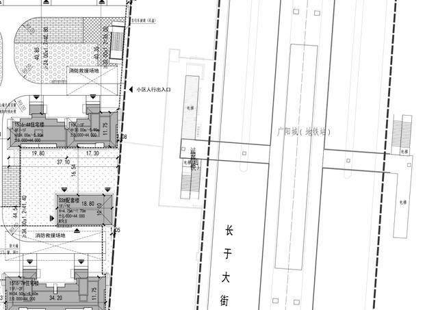
东门出来经由地下通道直达广阳城地铁站。


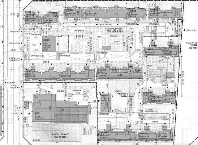
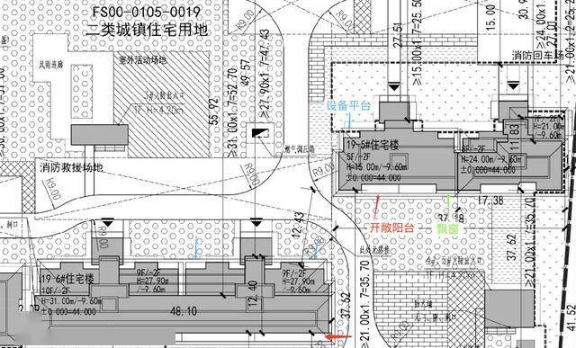
南区(0019地块)规划10栋住宅楼,也是大致按南北三行排列。
· 北排4栋:1#楼11层,两个单元,总面宽34.2米,进深11.75米;
2#楼、3#楼无缝连接,与北区8#楼隔街相对,也做了错落的楼层设计,两边高中间低,整体呈现出一个“凹”字。
其中2#楼11层,面宽20.4米,一个单元两户;
3#楼东边两个单元7层,总面宽43.4米;西单元11层,面宽22米。
这两栋楼的最大进深同12.55米。
西北角4#楼进深11.75米,东边单元9层,北向有退层,面宽17.2米;西单元10层,面宽17.3米。
· 中间3栋楼:5#楼总面宽37.18米,进深11.83米:东单元8层,北向有退层;西单元5层。
6#楼10层,北向退层设计。两个单元4户,总面宽48.1米,进深12.4米。
7#楼四个单元总面宽72.51米,进深11.75米。东边两个单元10层,西侧两个单元总高9层。
· 东南角的3栋楼:8#楼8层,北向有退层,两个单元总面宽34.28米,进深11.83米。
9#楼东单元7层,面宽17.38米,进深11.23米;西单元5层,面宽19.16米。
10#楼是小区唯一的小高层,总高14层,两个单元面宽41.3米,进深13.4米。
并排的9#楼和10#楼也是无缝相接,两侧距红线仅1米。

南区同样做了东西两处人行入口,西侧为景观大门,向内通过风雨连廊由西向东依次连接了:
小型商服(便利店)/物业服务用房/邻里共享空间→室外活动场地。
也是一条比较明显的中央景轴。
东门出来是一片规划绿地,打造成口袋公园,可以适当隔离地铁站带来的噪音影响。


房山首个“好房子”项目
这是北京“好房子”新规出台以来,房山首宗出让的地块。
出让文件提到,项目居住地块住宅产品设计鼓励建设单位按照好房子《技术要点》开展高标准设计,包括通过设置底层架空、风雨连廊、共享公共空间等举措增加公共空间,鼓励使用耐久性饰面材料,提升小区品质。
按需设置封闭或开敞阳台,每户阳台水平投影面积不大于套内建筑面积的 10%,进深不大于1.8 米。
同时也明确提到,建设单位须严格按照规划许可内容施工,严禁擅自封闭开敞阳台。
鼓励通过优化设计,提升住宅品质,避免片面执行《技术要点》单一条款或后期二次施工引发安全风险。
从总平图来看,大部分住宅楼南侧设置有通面宽开敞阳台,北向有多个设备平台。
阳台进深目测就很大,按照出让文件,应该都会达到1.8米的尺度。
部分户型南边是阳台+飘窗组合,侧边有转角飘窗,赠送面积同样不低。
小区19栋住宅楼里有18栋都是洋房,本身得房率就比较高,加赠之后,预计将达到房山目前为止的得房率天花板。


配建社区会客厅
0019地块西侧隔街规划建设一片社区服务楼,占地7069.33㎡,建面7776.263㎡,容积率1.1。
主体建筑总高3层,包含:
邮政局1处,建筑面积2200㎡;社区卫生服务站350㎡;社区助残服务中心300㎡;
社区文化设施700㎡;社区体育设施700㎡;社区养老服务设施1000㎡;
再生资源回收站50㎡;社区管理服务用房350㎡;公共厕所70㎡;
菜市场1000㎡;社区商业服务网点500㎡;品质提升型商业服务1处,建筑面积550㎡。

拿地回溯
11月25日,北京城建以14.71亿元底价摘得房山北广阳城棚改项目0015等地块。
项目占地5.56公顷,规划建筑面积约9.6万㎡。
该地块在10月21日正式挂牌当天,相关设计单位招标计划就发出来了。
规划总建面9万㎡,估算投资11.82亿元。
招标单位北京城建瑞泰投资发展有限公司,是北京城建房地产的全资子公司,也是房山颐知筑项目的开发主体。
法定代表人、董事长杨娜,为北京城建集团开发公司副总经理。
项目经理、财务负责人为宋春刚。

房山近一年没有涉宅地块出让,上次土拍还是去年的8月初,北京建工璟贤瑞庭所在的良乡0008地块,也是底价成交。
这次出让的地块位置上更靠近地铁站,北边的山姆会员店、宣武医院都在1公里范围内,步行可达。
地形也比较规整,正南正北朝向,应该说是这两年房山素质最好的一宗地了。
更重要的是楼面价1.8万元/㎡,比南边的和知筑地价还便宜了7000元。

项目位于房山区长阳镇,五环至六环之间,紧邻地铁房山线广阳城站。
周边有北京房山熙悦天街、首创奥特莱斯、北亚骨科医院、郊野生态公园、长阳公园等,生活配套较完善。
房山目前有大量新盘在售,地块南边就是北京城建·和知筑,西边3公里左右是颐知筑。
此外还有华润京熙润府、京华国贤府、建工璟贤瑞庭,都是近一年左右才开盘的项目。
