迪荡湖畔,风雅入画。
12月10日,元垄·泓庐宋韵观澜生活馆在万众期待中优雅启幕,以一场融合传统仪式、宋式风雅与当代湖居理想的生活预演,为到场嘉宾勾勒出一幅诗意栖居的未来画卷。



随着生活馆的正式开放,泓庐实景缓缓展开。泓庐深研宋代造园精髓,摒弃繁复,追求“疏密有致,小中见大”的写意境界,一草一木皆蕴藏宋式园林的简约与深邃;室内空间,格局开阔,陈设精雅,将现代生活的舒适与古典美学的韵味巧妙结合。






▲示范区实景

元垄·泓庐,是元垄集团“湾府系”迭代著作,拥三面环水的半岛格局,约1.2公里绵长水岸线,采用“沿湖排布+高低过渡”的规划理念:临水一线,排屋依次错落布局,引景入室;洋房则巧妙置于地块北侧,形成前庭揽湖、后背有靠的稳定格局。

▲项目效果图
不同于传统中式的厚重风格,元垄·泓庐以“现代形,东方意”为设计理念,从宋画中汲取灵感,打造出兼具雅致韵味与现代气质的建筑立面。
部分外立面采用“大面玻璃+香槟金铝板”的组合,营造出轻盈而又沉稳的视觉感受;屋顶采用宋式歇山顶,檐口平缓、层层出挑;栏杆、檐廊等细部则复刻宋式建筑。
立足塔尖人群的改善需求,元垄·泓庐聚焦于建面约230-600㎡的宋韵排屋产品。项目即将首开,敬请关注。
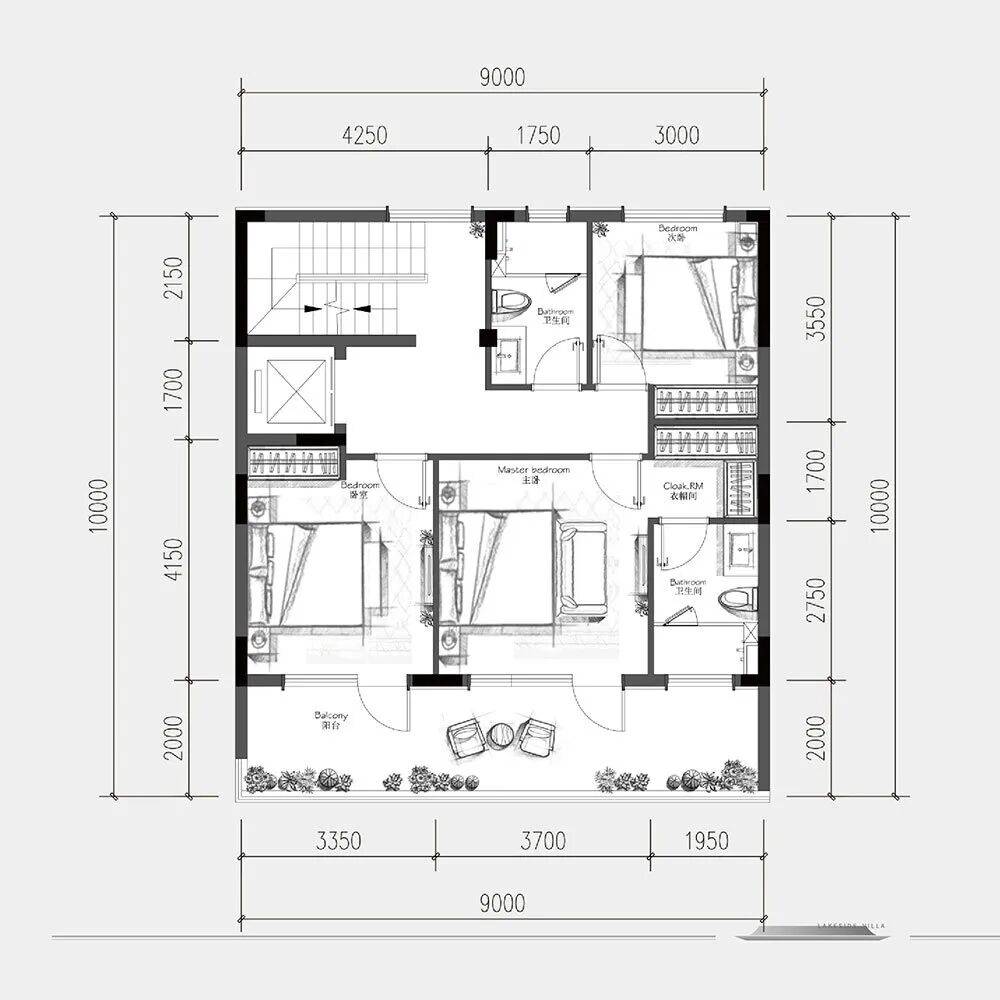
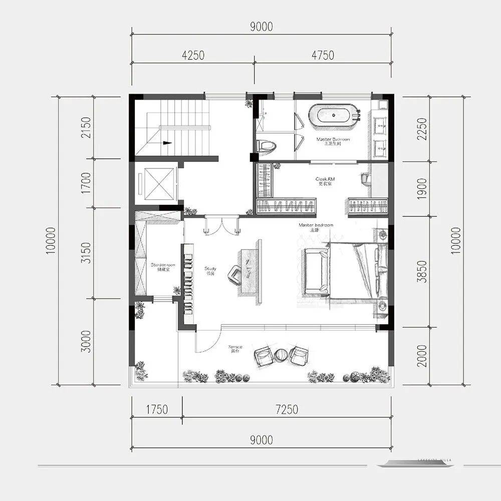
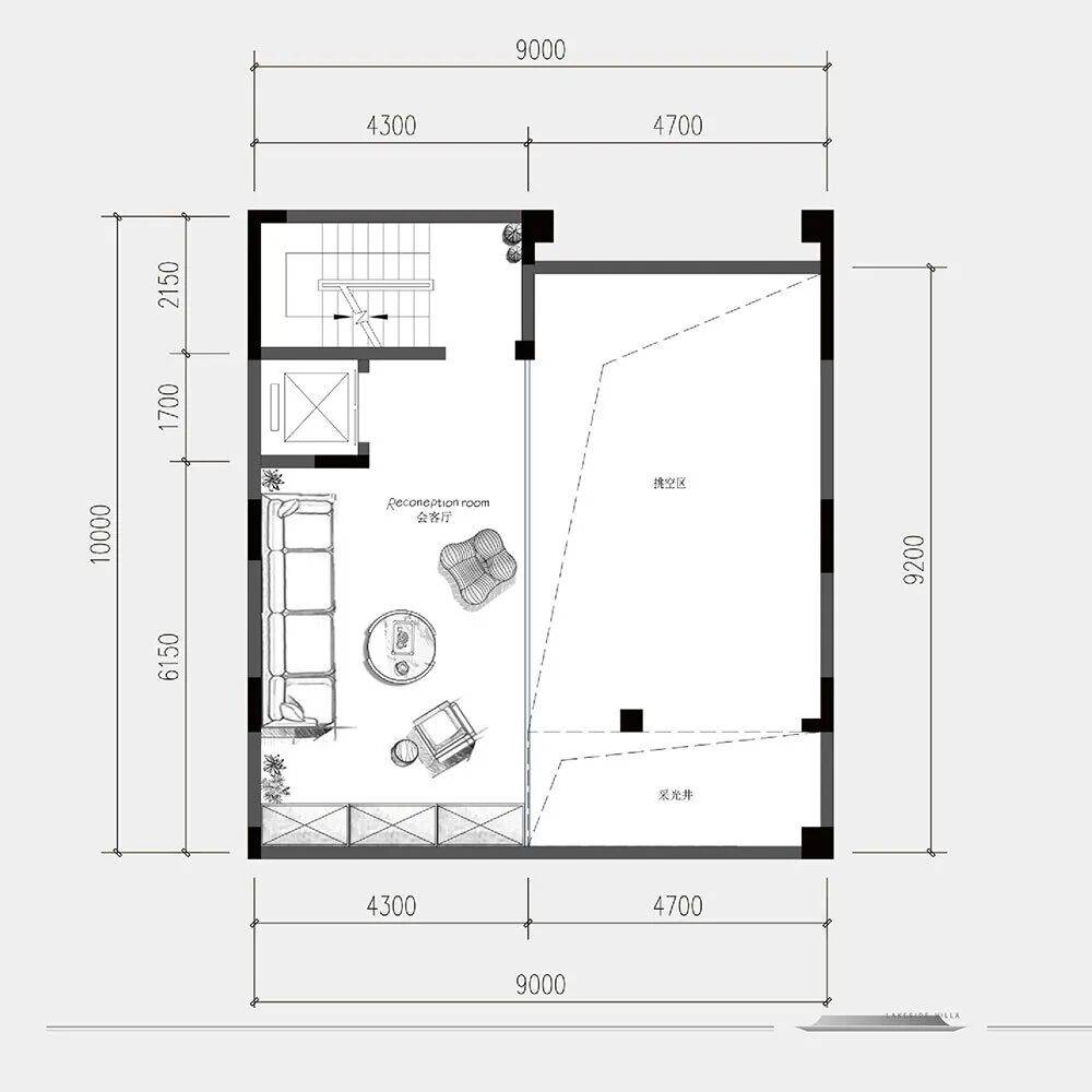
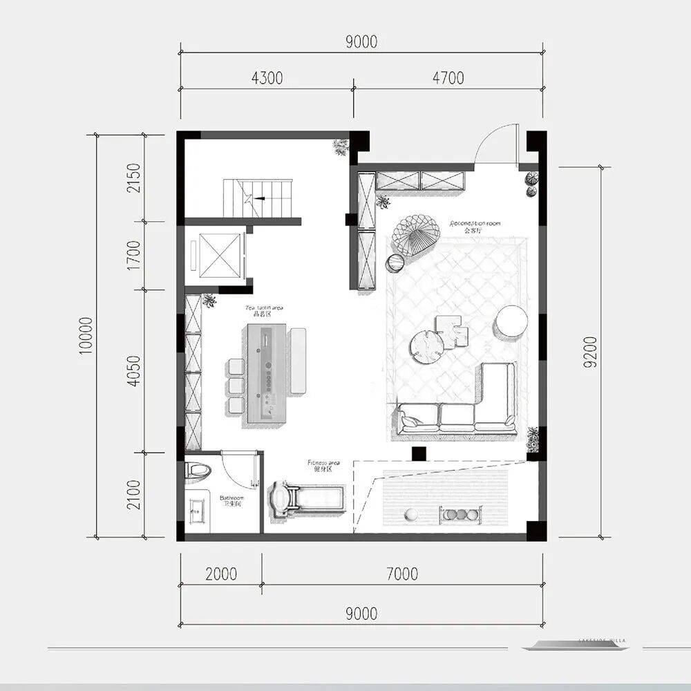
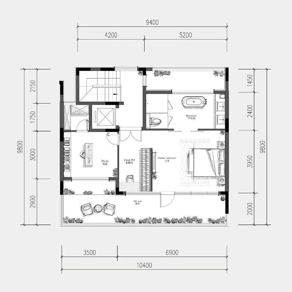
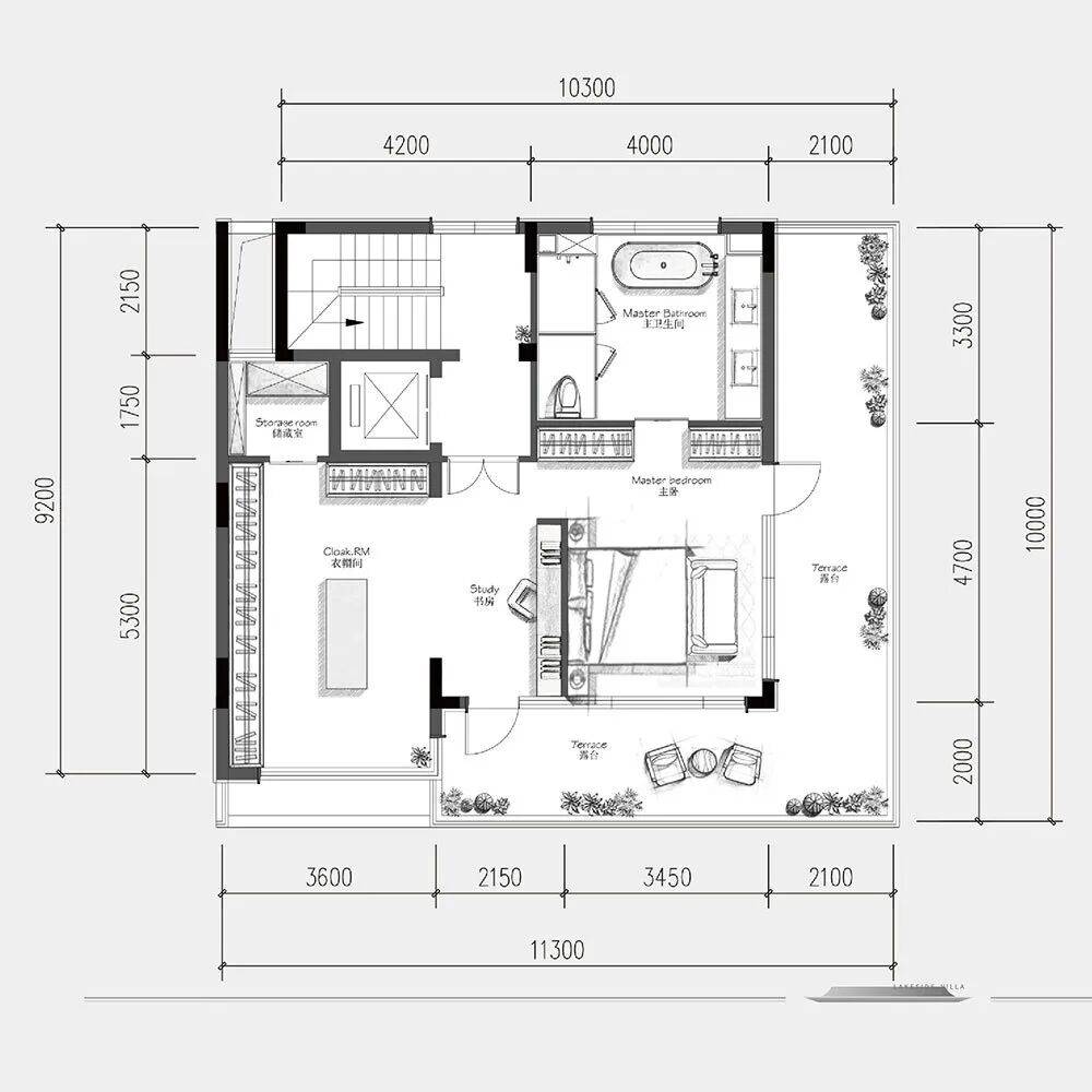
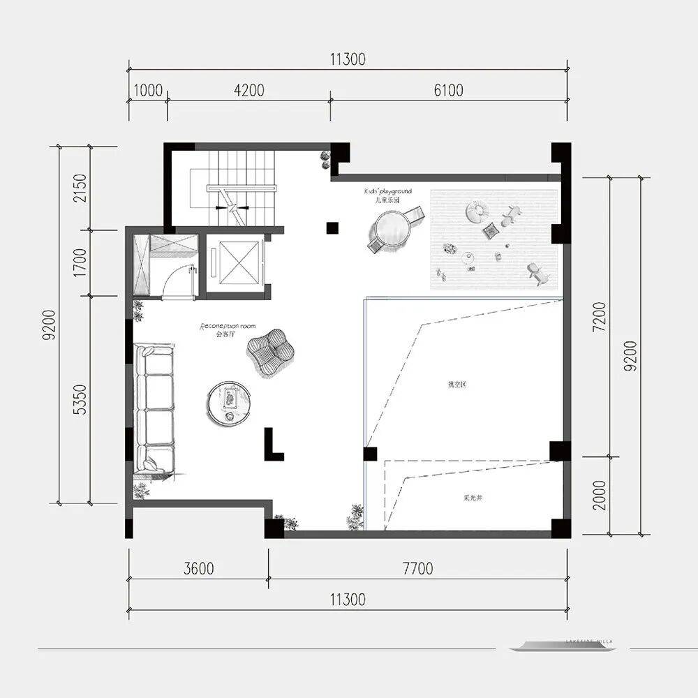
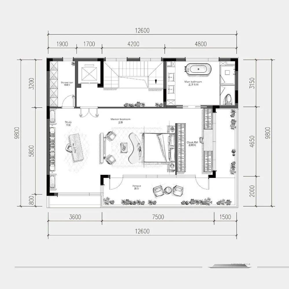
户型品鉴
排屋
建面约229㎡





排屋
建面约255㎡





排屋
建面约281㎡





排屋
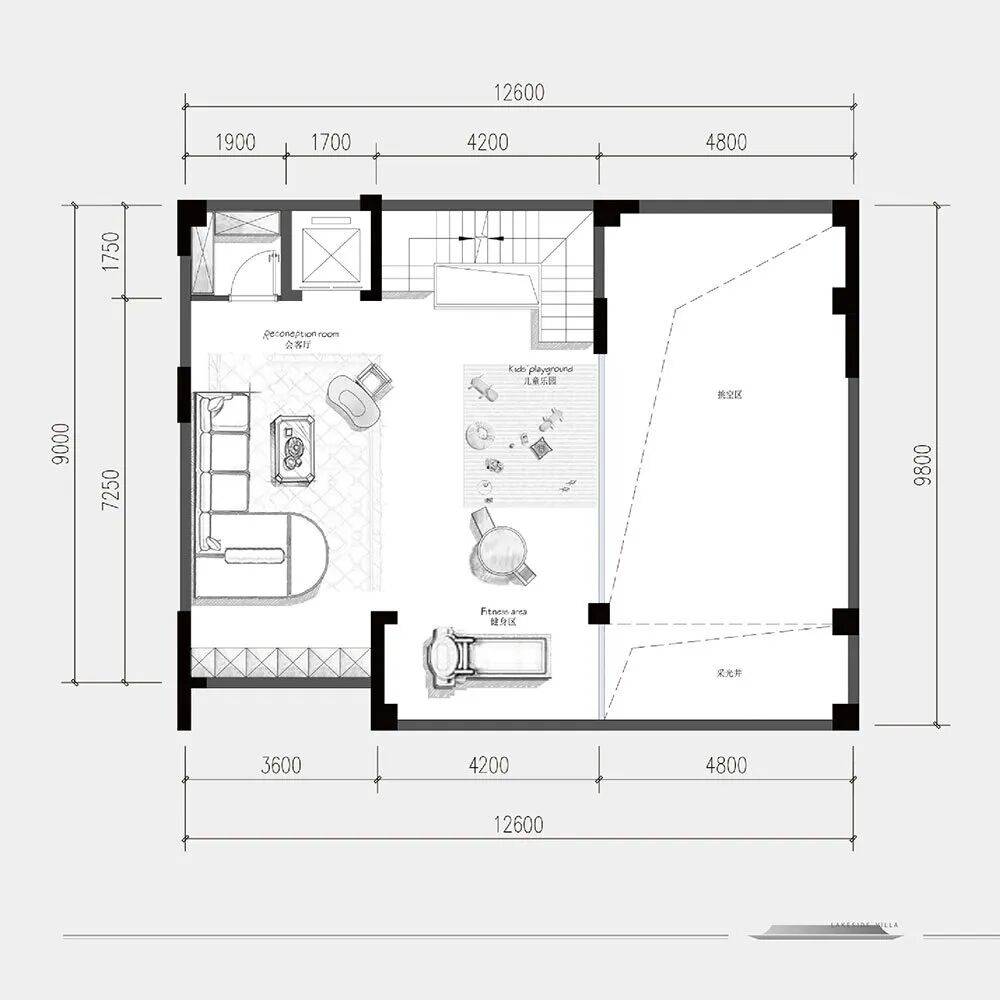
建面约323㎡





排屋
建面约396㎡





排屋
建面约503㎡






本项目推广名为“元垄·泓庐”,开发公司为绍兴垄达置业有限公司;本资料中的效果图仅供示意,非实际交付标准,最终以政府相关部门审批内容为准;本资料为要约邀请,不作为要约或承诺,买卖双方的权利义务以双方签订的《商品房买卖合同》及其附件为准;本资料发布内容时间为2025年12月,本项目将不定期对宣传资料进行修改,修改后不再另行通知,敬请留意最新宣传资料。