
最新消息:继上次【鸿荣源珈誉府】一区样板推售出来被抢售一空后,西部销冠项目鸿荣源珈誉府二区的所有样板预计月中推售,建面约65-76-85㎡(横竖厅都有),86-87-94(横竖厅),96㎡横厅,105-120㎡,共计70套货量,具体价格如下所示,二区离学校更近!展示面更好。



二期珈誉府样板房价格如下
0️⃣66平(8楼280万)
1️⃣76平(3、4楼330万,7、8楼331万)
2️⃣85平竖厅(3、4楼362万,7、8楼365万)
3️⃣85平横厅(3、4楼374万,8楼378万)
4️⃣86平双龙爆珠(3、4楼374万)
5️⃣86平竖厅(3、4楼362万)
6️⃣87平横厅(4楼395万、8楼396万)
7️⃣94平竖厅(外圈3、4楼405万,7、8楼408万;内圈3、4楼420万,7、8楼423万)
8️⃣94平横厅(7、8楼446万)
9️⃣96平横厅(8楼440万)
105平竖厅(4楼525万)
*️⃣120平竖厅(3楼4楼613万)

下面是我们楼盘营销中心实拍照片:

如需了解本楼盘更多详情,欢迎来电咨询深圳鸿荣源珈誉府楼盘开发商售楼处免费400咨询/预约电话:400-880-7297(官方发布)中介请勿扰,因近期参观的人员太多,本项目营销中心暂不接受临时到访,为不耽误您的行程,过来楼盘现场参观样板房请务必记得提前来电预约,预约看房的话最终房价还能更加优惠,最终价格包您满意!


宝安沙井鸿荣源珈誉玖玺于2025年9月25日取证入市,当时新推7栋,共262套房源,面积有94-98㎡的3房2卫,109㎡的4房2卫户型,共223套房源,备案均价5.16万/㎡,备案单价4.84-5.66万/㎡,总价458-618万/套,合同约定在2026年12月前带简装交房,赠送全屋海尔中央空调。
规划平面图

鸿荣源珈誉玖玺也是鸿荣源珈誉府3期住宅,是整个项目的收官之作,刚需3件套齐全,以后也会是整个沙井配套最成熟,人口最集中的区域,其在2023-2025年都是深圳销冠楼盘。





项目区域及楼盘介绍
鸿荣源珈誉府,位于宝安大道于凤塘大道交汇处东南侧,该项目原是"塘尾片区城市更新单元“,由鸿荣源集团一手打造,也号称是第二个壹城中心升级版,地处沙井核心板块,周边1公里内涵盖3个重量级商业(万丰海岸城购物中心+鸿荣源壹方奥特莱斯+华强购物中心),11号地铁线”塘尾站“距离约300米。

鸿荣源珈誉府,总建面约248万㎡,将打造近8000套住宅,其中住宅面积70万㎡,商业面积50万㎡,共分4期开发,是鸿荣源集团全新开发的地标级综合体大盘,涵盖高端住宅、商业办公、星级酒店、优质教育、大型购物中心等业态。

而本次壹方奥莱商业中心,也是鸿荣源”奥特莱斯“产品线的首个项目,商业中心通过空中绿道与塘尾地铁站相连,现代感十足,也是鸿荣源继前海壹方城,龙华壹方天地之后开发的第3个超大商住综合体项目。

鸿荣源珈誉玖玺,由鸿荣源集团打造,总占地面积约4.79万㎡,总建筑面积约40.53万㎡,计容建筑面积约27.63万㎡,容积率5.42,绿化率40%,共由10栋总高31-48F住宅组成,其中6栋1/2单元住宅44F,7栋/8栋住宅48F,9栋1单元住宅46F,9栋2单元住宅45F,10栋1单元住宅47F,10栋2单元住宅31F,11栋住宅46F,12栋/13栋住宅48F。
总规划2479户,全部都是商品房,地下室有3层,规划停车位2795个,车位占比约1:1.127。

楼盘基础信息
1、开发商:深圳市鸿荣源控股(集团)有限公司
2、物业公司:深圳市鸿荣源物业服务有限公司
3、物业管理费:5.9元/㎡
4、总占地面积:约4.79万/㎡
5、总建筑面积:约40.53万/㎡
6、开发商电话:400 880 7297
7、绿化率:40%
8、产权年限:2022年5月-2092年5月(70年)
9、总户数:2479户
10、总栋数及楼高:10栋,31-44-45-46-47-48层
11、梯户比:2梯2户/3梯5户/3梯7户
12、车位数:2795个
13、车位占比:1:1.12
14、交楼时间:2026年12月31日交楼
15、交楼标准:简装修交楼
作为深耕深圳32年的企业,鸿荣源在发展过程中,打造了壹方玖誉、壹成中心、香蜜湖熙园等标杆性的口碑作品,至今仍是区域楼市的“风向标”。
截至目前,鸿荣源的地产开发销售额累计逾1000亿,累计服务客户逾4万户。

▲鸿荣源打造的住宅产品(部分)
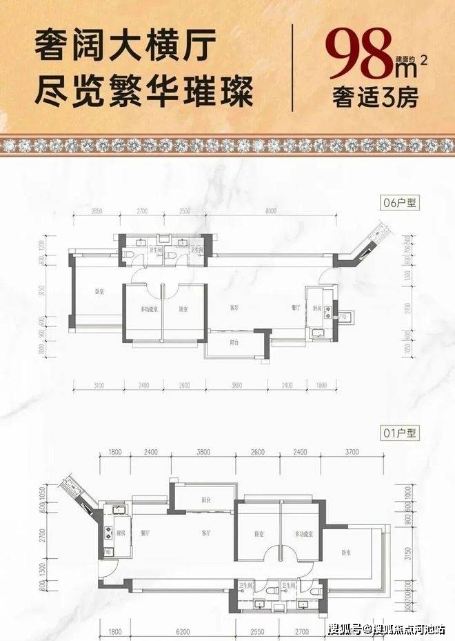
鸿荣源珈誉府平面图及户型图







其他在售户型



鸿荣源珈誉府周边配套
学校配套:鸿荣源珈誉府旁边,所规划的2个教育用地,已经正式出了红头文件,为深圳外国语宝安学校(集团)南校区,分别为1所63班九年一贯制学校,1所为27班九年一贯制学校(珈誉玖玺旁边),另外根据宝安区2024年最新的学区划分:
虽然同为宝安鸿荣源珈誉府项目,但是因为社区不同,学区划分是有明显区别的,旁边规划的深圳外国语宝安学校南校区仅27个班,后期录取积分应该会非常紧张,另外距离约900米的立新湖学校,在2024年小一的录取积分是86.8分,初一的录取积分是81分,塘尾万里学校在2024年的小一录取积分是100.5分,初一录取积分是94.2分。

地铁配套:鸿荣源珈誉玖玺家门口就是宝安大道及凤塘大道等交通主干道,11号地铁线“塘尾站”,距离约300米,4站到宝安机场,6站到宝中,7站到前海湾,8站到南山,11站到车公庙。鸿荣源珈誉玖玺家门口就是宝安大道及凤塘大道等交通主干道,

商业配套:
下楼即享商业:百亿超级商圈,定鼎西部新中心
鸿荣源斥资约250亿打造又一湾区城市级购物中心
约50万㎡“湾区壹方”、约10万㎡“熊出没”主题华强广场
宝安首家山姆会员店、海岸城18万㎡商业,缤纷商业集聚
共筑百亿超级商圈,定义湾区城市商业新模式,定鼎西部新中心

鸿荣源珈誉府优劣势
1、首次说下珈誉玖玺的区位板块,是属于沙井的塘尾片区,相对靠近宝中,在板块来看也靠近当前的马安山海岸城商业中心,加上鸿荣源这么大体量的房子,以后也肯定会成为沙井最为核心的区域。
2、从买房刚需必备3件套来看,家门口50万平的壹方奥特莱斯商业,11号线塘尾站距离300米,也是宝安的生命线,配套的学校跟鸿荣源珈誉府1/2期是有区别的,3期珈誉玖玺属于稔田社区,后期大概率只能就读深外宝安南校区27班制的这所学校,虽然学校同属深圳外国语,但是学校班级有限,后期入学会特别紧张,另外最近的就是立新湖学校,总体评分还是上选的。
3、鸿荣源珈誉玖玺居住人群比较纯粹,总共2479户,全部都是商品房,没有公共住房,安居房,公租房,回迁房,人才房等掺和。
4、从珈誉府1.2期入市以来的销量就可以看到其受欢迎程度,在2023年首次入市以来,几乎每个月都是宝安区的销冠楼盘,也一度成为整个深圳的新房销冠楼盘。
5、鸿荣源的品质一直都是深圳房地产行业的标杆,从龙岗中心城的公园大地,龙华的壹城中心,宝中的鸿荣源熙龙湾,沙井的鸿荣源禧园,布吉的鸿荣源尚峰等等,都是广受买房者喜欢的楼盘,不管是房屋品质还是物业层面都是赞不绝口。
6、鸿荣源珈誉玖玺周边公园配套颇多,在800米范围内有万丰湖湿地公园,立新湖公园,在3公里内还有宝安最为出名的凤凰山公园。
7、鸿荣源珈誉玖玺不加赠送得房率是77%,加上赠送后得房率有94%,并且配置的都是海尔中央空调,全屋的飘窗都是可以打掉的,实用性更强。


看完以上图文介绍,您如果想要了解更多关于我们深圳宝安鸿荣源珈誉府楼盘最新消息、当前剩余房源、这几天楼盘现场折扣优惠活动、近期周边房价走势、银行相关利率政策等情况的话,欢迎来电咨询鸿荣源珈誉府开发商售楼处免费400咨询/预约热线电话:400-880-7297(官方发布)中介勿扰。
温馨提示:因本项目营销中心参观样板间采取预约制,为不耽误您的行程,过来营销中心现场看房前请务必记得提前来电预约,预约看房的话享受的优惠折扣比直接上门更多,最终成交价格也会更加划算,在此真诚感谢您对我们工作的支持和信赖,恭候您大驾光临。
免责声明:以上展示的关于深圳宝安沙井鸿荣源珈誉府楼盘最新相关的最新图文资料可能部分来自网络,具体细节以最终签署的购房合同为准,如无意存在侵犯某方权益请及时联系我们处理。