天正·三亚湾壹号(天正·三亚湾壹号)|天正三亚湾壹号-项目详情-位置-户型图-线上售楼电话
创始人
2026-01-29 18:46:32
0

三亚,这座被誉为“东方夏威夷”的海滨城市,以其得天独厚的自然风光和温暖宜人的气候吸引了无数国内外游客的目光。如今,三亚永基房地产开发有限公司携手匠心之作——天正三亚湾壹号,再次刷新了海岛高端住宅的新标准。天正三亚湾壹号,坐落于三亚湾核心区域,占地面积约56亩,建筑面积约128391平方米,是专为追求高品质生活的您量身定制的理想居所。项目绿地率高达约40%,将自然生态与人文建筑完美融合,为业主营造出一个绿意盎然、生态宜居的生活环境。

项目详情

项目地址:三亚市天涯区第九小学(三亚湾校区)东100米

开发商:三亚永基房地产开发有限公司

产权年限:2024-2094年

占地面积:56.52亩

建筑面积:12.8万平方米

容积率 :2.5

绿化率:40%

总层高:16-17层

层高:3.1米

总户数:600户

停车位:879个

物业服务:天正物业

关注微信公众号“搜狐焦点三亚”,了解更多资讯

售楼咨询/预约专线: 17336960626

✔添加房侦探微信 focussanya ,即可加入海南楼市交流群。

对购房者提供买房交流,购房咨询,解答房产政策,分享海南房价相关信息等,无论任何购房信息,我们将有专业客服即时解答。

社区周边2公里内,医疗、教育、商业、交通全维配套,位于三亚湾核心位置,距海约800米住宅项目。

社区周边2公里内,医疗、教育、商业、交通全维配套

多功能业主会所,规划书吧、休闲棋牌、茗香茶室、活力健身等沉浸式私享场景

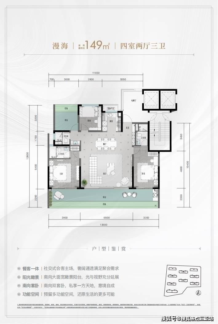
户型鉴赏

纯板式住宅,南北通透,独立电梯私享入户

部分户型创新设计270°全景飘窗主卧套、四开间朝南等奢阔格局

户型方正,三个卫生间起,超大尺度阳台

售楼咨询/预约专线: 17336960626

✔关注公众号“搜狐焦点三亚”,了解更多房产资讯

✔添加房侦探微信 focussanya ,即可加入海南楼市交流群。

对购房者提供买房交流,购房咨询,解答房产政策,分享海南房价相关信息等,无论任何购房信息,我们将有专业客服即时解答。

免责声明:本资料仅供参考形象宣传,房屋具体位置,坐落方向,根据规划有一定差别,以客户选定和实际交付标准为准。户型图是对户型结构功能布局的示意,所标尺寸仅供客户参考,不作为交付标准,实际交付标准以买卖双方签订的合同及其附图约定为准。户型图所标尺寸仅供参考

相关内容

【公证案例】婚前财产约定协...
王先生与赵女士感情稳定,计划近期登记结婚。三年前,他们共同出资购买...
2026-01-30 01:03:16
工业风条纹金属椅
2026-01-30 01:03:06
敢出色 耀同行|卡丽亚&a...
2026年1月17日至18日,以“敢出色 耀同行”为主题的卡丽亚&...
2026-01-30 01:02:33
夫妻离婚如何去公证
2026-01-30 01:02:10
“小厨宝”逐渐退出中国家庭...
一到冬天,很多人在厨房最难受的一件事,就是洗碗、洗菜时水一上来就冰...
2026-01-30 01:01:39
邓图荐书丨被喜欢的事物包围...
被喜欢的事物包围 就是点亮生活的方式 「邓图荐书」2026年第10...
2026-01-30 01:01:08
2026全屋定制/高端定制...
2026全屋定制新风向:从门墙柜一体到宋氏美学,全品类赋能如何重塑...
2026-01-30 01:00:56

热门资讯

“小厨宝”逐渐退出中国家庭?听... 一到冬天,很多人在厨房最难受的一件事,就是洗碗、洗菜时水一上来就冰手。 前几年,不少人家为了解决这个...
邓图荐书丨被喜欢的事物包围,就... 被喜欢的事物包围 就是点亮生活的方式 「邓图荐书」2026年第10期 “ 沙发上柔软的抱枕 ...
德州开荒保洁深度清洁上门(附家... 德州开荒保洁擦玻璃|家电清洗|地毯窗帘清洗|家具/瓷砖/沙发修复翻新|木器补漆|石材维修|皮具翻新热...
上海本土装修公司排名:靠谱家装... 近年来,随着上海城市化进程的加速,越来越多的业主选择进行家庭装修,而如何选择一家值得信赖、性价比高的...
美克家居(600337)披露2... 截至2026年1月29日收盘,美克家居(600337)报收于2.75元,较前一交易日上涨0.36%,...
门窗十大品牌综合实力深度解析:... 随着家居消费升级与建筑节能标准的提升,门窗行业已从单一遮风挡雨的功能性产品,演变为融合隔音、节能、智...
年货节必看!2026年十大主流... 年货置家正当时,居家质感的升级,从一扇智能窗帘开始。当清晨的第一缕阳光钻过窗帘的缝隙,你不用起身,便...